- ΤΕΡΝΑ Α.Ε. – VINCI – SIEMENS AG “TVS”,
- J+P ΑΒΑΞ A.E. – GHELLA SpA – ALSTOM TRANSPORT S.A.
- ΑΚΤΩΡ ΑΤΕ – ANSALDO STP S.p.A – HITACHI RAIL ITALY SPA
- Άλσος Βεΐκου: επί της λεωφόρου Βεΐκου – Ομορφοκκλησιάς, πλησίον της διασταύρωσης με την οδό Τράλλεων. Θα σχεδιαστεί ως τερματικός σταθμός. Πλησίον θα υπάρχει αφετηρία λεωφορειακών γραμμών. (ΚΑΤΟΨΗ, ΤΟΜΗ 1, ΤΟΜΗ 2)
- Γαλάτσι: στη διασταύρωση των λεωφόρων Βεΐκου και Αγίας Γλυκερίας. Η μελέτη έχει λάβει υπόψη μελλοντική υπογειοποίηση της λεωφόρου Γαλατσίου. Πρέπει να δοθεί προσοχή λόγω αγωγών υψηλής τάσης της ΔΕΗ πλησίον του σταθμού. (ΚΑΤΟΨΗ, ΤΟΜΗ 1, ΤΟΜΗ 2)
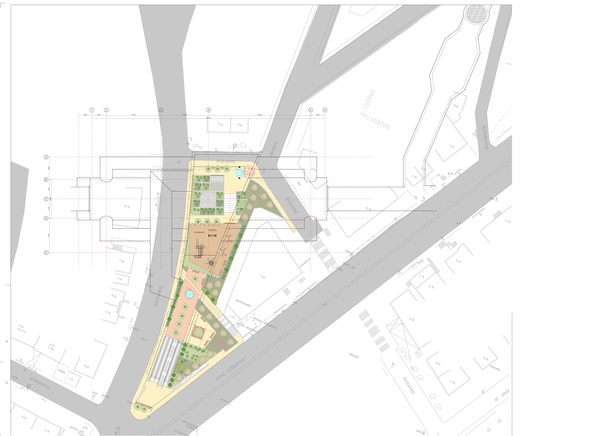
- Ελικώνος: στη συμβολή των οδών Αγίας Γλυκερίας και Πάρνηθος, πλησίον του λόφου Ελικώνος. (ΚΑΤΟΨΗ, ΤΟΜΗ 1, ΤΟΜΗ 2)
- Κυψέλη, στην πλατεία Κυψέλης. Το μεγαλύτερο τμήμα θα κατασκευαστεί με ανοικτό όρυγμα ενώ τμήμα του σταθμού θα κατασκευαστεί με υπόγεια διάνοιξη. (ΚΑΤΟΨΗ, ΤΟΜΗ 1, ΤΟΜΗ 2)
- Δικαστήρια, σε ελεύθερο χώρο στα δυτικά του συγκροτήματος των κτιρίων των δικαστηρίων, στη διασταύρωση Ευελπίδων και Μουστοξύδη. (ΚΑΤΟΨΗ, ΤΟΜΗ 1, ΤΟΜΗ 2)
- Αλεξάνδρας, σε ελεύθερο χώρο στη διασταύρωση Μουστοξύδη και λεωφόρου Αλεξάνδρας. Ο σταθμός θα κατασκευαστεί με υπόγεια διάνοιξη λόγω περιορισμένου χώρου. (ΚΑΤΟΨΗ, ΤΟΜΗ 1, ΤΟΜΗ 2)
- Ακαδημία: σημαντικός σταθμός ανταπόκρισης με άμεση υπόγεια σύνδεση με τον σταθμό «Πανεπιστήμιο» στην Γραμμή 2. Χωροθετείται κάτω από την οδό Ακαδημίας, στην περιοχή των κτιρίων της «Τριλογίας», μεταξύ του κεντρικού κτιρίου του Πανεπιστημίου Αθηνών καθώς και του πνευματικού Κέντρου του Δήμου Αθηναίων. (ΚΑΤΟΨΗ, ΤΟΜΗ 1, ΤΟΜΗ 2)
- Κολωνάκι, στην πλατεία Κολωνακίου. Απαιτείται προσοχή λόγω ύπαρξης αγωγών υψηλής τάσης της ΔΕΗ καθώς και του ΟΤΕ. (ΚΑΤΟΨΗ, ΤΟΜΗ 1, ΤΟΜΗ 2)
- Ευαγγελισμός: στη διασταύρωση των οδών Βασιλίσσης Σοφίας, Ριζάρη και Βασιλέως Κωνσταντίνου, κάτω από το πάρκο. Όπως και ο σταθμός Ακαδημία, ο σταθμός του Ευαγγελισμού θα είναι ανεξάρτητος από τον υφιστάμενο σταθμό της γραμμής 3, αλλά θα συνδέεται με αυτόν. (ΚΑΤΟΨΗ, ΤΟΜΗ 1, ΤΟΜΗ 2)
- Πανεπιστημιούπολη, στο χώρο της Πανεπιστημιούπολης του ΕΚΠΑ, βόρεια της εσωτερικής οδικής αρτηρίας. (ΚΑΤΟΨΗ, ΤΟΜΗ 1, ΤΟΜΗ 2)
- Ζωγράφου, επί της πλατείας Αλεξανδρή (πλατεία Γαρδένιας) στον Δήμο Ζωγράφου, στη συμβολή των οδών Γ. Ζωγράφου και Γ’ Ορεινής Ταξιαρχίας με τη λεωφόρο Στρ. Αλεξάνδρου Παπάγου. (ΚΑΤΟΨΗ, ΤΟΜΗ 1, ΤΟΜΗ 2)
- Γουδή, στην πλατεία Ελευθερίας και οδού Λοχ. Σπηλιόπουλου. Προσοχή πρέπει να δοθεί λόγω παρακείμενου αγωγού ομβρίων και εγκιβωτισμένου ρέματος. (ΚΑΤΟΨΗ, ΤΟΜΗ 1, ΤΟΜΗ 2)
- Μηκοτομή και οριζοντογραφία της γραμμής (πριν την τροποποίηση του σχεδιασμού)
- Τυπική Διατομή Σήραγγας Διπλής και Τριπλής Τροχιάς
- Προτεινόμενη Μέθοδος Κατασκευής ανά τμήμα
- Τμήμα Β: Γουδή-Μαρούσι (μήκους 9,6 χλμ και 8 σταθμούς). Ήδη από την α’ φάση, η γραμμή μετά το Γουδί, η γραμμή θα φτάνει ως το σημερινό σταθμό Κατεχάκη της γραμμής 3 όπου όμως δεν θα κατασκευαστεί σταθμός ανταπόκρισης σε αυτή φάση αλλά την επόμενη. Στη συνέχεια, δια μέσου της λεωφόρου Κηφισίας η γραμμή θα ανέβει ως το Μαρούσι (δαχτυλίδι Αττικής Οδού) και θα καταλήγει στο σημερινό σταθμό Μαρούσι της γραμμής 1.
Σταθμοί: Κατεχάκη (ανταπόκριση με τη γραμμή 3), Φάρος, Φιλοθέη, Σίδερα, Ολυμπιακό Στάδιο, Παράδεισος (πιθανή ανταπόκριση με το σταθμό Κηφισίας του Προαστιακού), ΟΤΕ, Μαρούσι (ανταπόκριση με τη γραμμή 1). - Τμήμα Γ: Ευαγγελισμός-Άνω Ηλιούπολη (μήκους 3,6 χλμ και 3 σταθμούς). Μεταξύ των σταθμών Ευαγγελισμός και Καισαριανή του τμήματος Α, θα υπάρχει διπλή διακλάδωση (δύο σήραγγες μονής τροχιάς) μέσω των οποίων οι συρμοί θα κινούνται προς Βύρωνα και Άνω Ηλιούπολη. Ο κλάδος αυτός της γραμμής 4 θα αποτελέσει τμήμα της μελλοντικής γραμμής 5 του Μετρό, η οποία θα μοιράζεται ένα κοινό τμήμα με τη γραμμή 4 (Ακαδημία – Ευαγγελισμός).
Σταθμοί: Παγκράτι, Βύρωνας, Άνω Ηλιούπολη - Τμήμα Δ: Άλσος Βεΐκου – Περισσός (μήκους 3,0 χλμ και 2 σταθμούς). Πρόκειται για μια μικρή επέκταση η οποία θα συνδέσει τη γραμμή με τον Περισσό και τον ομώνυμο σταθμό της γραμμής 1, ο οποίος θα γίνει σταθμός ανταπόκρισης.
Σταθμοί: Νέα Ιωνία (δεν πρόκειται για το σημερινό σταθμό του ΗΣΑΠ, ελπίζουμε να είναι προσωρινή ονομασία), Περισσός (ανταπόκριση με τη γραμμή 1) - Τμήμα Ε: Μαρούσι-Εθνική Οδός (μήκους 4,4 χλμ και 3 σταθμούς). Μετά το Μαρούσι, η γραμμή θα κινηθεί προς Πεύκη και Λυκόβρυση, καταλήγοντας στην Εθνική Οδό, στο ύψος της Κηφισιάς. Αν μέχρι τότε δεν υπάρξει κάποια μεταβολή στο σχεδιασμό, στην περιοχή της Λυκόβρυσης αναμένεται να κατασκευαστεί και αμαξοστάσιο για τη γραμμή 4.
Σταθμοί: Πεύκη, Λυκόβρυση, Εθνική Οδός.
Σήμερα, το Athens Transport ενημερώνει το περυσινό αφιέρωμα στη γραμμή 4 του Μετρό με όλες τις αλλαγές και τις εξελίξεις που έχουν προκύψει από τότε.
Με το διαγωνισμό να είναι έτοιμος να μπει στη δεύτερη και πιο κρίσιμη φάση του, το μεγάλο έργο για την κατασκευή του πρώτου τμήματος της γραμμής 4 του Μετρό, θα βρίσκεται όλο και συχνότερα στη δημοσιότητα.
Πρόκειται για το τμήμα από το Άλσος Βεΐκου ως το Γουδή, μήκους 12,8 χιλιομέτρων και με 15 σταθμούς (Άλσος Βεΐκου, Γαλάτσι, Ελικώνος, Κυψέλη, Δικαστήρια, Αλεξάνδρας, Εξάρχεια, Ακαδημία, Κολωνάκι, Ευαγγελισμός, Καισαριανή, Πανεπιστημιούπολη, Ιλίσια, Ζωγράφου, Γουδή)

Τι έχει αλλάξει τον τελευταίο χρόνο; Πέρα από την ολοκλήρωση της α’ φάσης του διαγωνισμού που ξεκίνησε στις 10 Απριλίου 2017 και την εξασφάλιση χρηματοδότησης από το νέο ΕΣΠΑ 2014-2020 και την ΕΤΕπ, έχει οριστικοποιηθεί η χάραξη και οι σταθμοί του τμήματος Άλσος Βεΐκου – Γουδή, με την προσθήκη του 15ου σταθμού (Ελικώνος) στην Κυψέλη και τη μετατόπιση του σταθμού «Νήαρ Ηστ» από το κέντρο της Καισαριανής, πλησίον της Πανεπιστημιούπολης.
Ο διαγωνισμός για το έργο
Αυτό τον καιρό η Αττικό Μετρό ετοιμάζεται για τη β’ φάση του διαγωνισμού, όπου οι επιλεχθείσες κοινοπραξίες θα κληθούν να καταθέσουν δεσμευτικές προσφορές. Η προκήρυξη της β’ φάσης αναμένεται, εκτός απροόπτου και σύμφωνα με την Αττικό Μετρό, μέσα στον Ιούνιο.
Οι τρεις διεκδικητές που θα κατέβουν στην β’ φάση του διαγωνισμού θα είναι οι:
Ο 4ος διεκδικητής, όπως είχε προκύψει κατά την ολοκλήρωση της α’ φάσης τον περασμένο Αύγουστο, η κοινοπραξία FCC – ARCHIRODON – ΜΥΤΙΛΗΝΑΙΟΣ τελικά έμεινε έξω από το διαγωνισμό με απόφαση της Αττικό Μετρό, λόγω μη επαρκούς τεχνικής εμπειρίας.
Το θετικό σενάριο θα είναι να υπάρχει προσωρινός μειοδότης ως τις αρχές του 2019 και στη συνέχεια η υπογραφή της σύμβασης και η έναρξη των έργων να γίνει στα μέσα με τέλη του 2019. Καθώς ο χρόνος κατασκευής προβλέπεται να είναι 96 μήνες (8 χρόνια), αυτό σημαίνει πως το έργο θα ολοκληρωθεί το νωρίτερο ως τα τέλη του 2027, εφόσον φυσικά δεν υπάρξουν καθυστερήσεις, κάτι που θα ήταν πρωτοφανές για έργο μετρό.
Εν τω μεταξύ αγνοείται η τύχη του διαγωνισμού για τις πρόδρομες εργασίες, για τα έργα δηλαδή που θα πρέπει να ξεκινήσουν πριν ο ανάδοχος ξεκινήσει τις κύριες εργασίες. Το περασμένο καλοκαίρι, ο υπουργός Υποδομών και Μεταφορών Χ. Σπίρτζης υποστήριζε πως ο διαγωνισμός για τις πρόδρομες εργασίες θα ξεκινήσει το φθινόπωρο (του 2017) ενώ στη συνέχεια, στις αρχές του 2018. Τελικά, ο διαγωνισμός εκκρεμεί ακόμα.
Το γεγονός πάντως πως οι πρόδρομες εργασίες (μετατόπιση δικτύων κοινής ωφέλειας και αρχαιολογικά) περιλαμβάνονται στην προκήρυξη της πρώτης φάσης για το κύριο έργο προκαλεί ερωτηματικά για το εάν αυτές οι εργασίες θα γίνουν για πρώτη φορά ξεχωριστά από το κύριο έργο ή θα είναι μέρος αυτού.
Οι νέοι σταθμοί ‘Ελικώνος’ και ‘Πανεπιστημιούπολη’

Η προσθήκη ενός επιπλέον σταθμού στο πρώτο τμήμα της γραμμής, του σταθμού ‘Ελικώνος‘ στην Κυψέλη, οριστικοποιήθηκε τον περασμένο Νοέμβριο και ήταν μία μεγάλη νίκη για τους κατοίκους της περιοχής που εξαρχής ζητούσαν το σταθμό. Πρόκειται εξάλλου για την πλέον πυκνοκατοικημένη περιοχή της Αθήνας και σύμφωνα με την προηγούμενη χάραξη οι σταθμοί Γαλάτσι και Κυψέλη βρίσκονταν σε απόσταση μεγαλύτερη του ενάμιση χιλιομέτρου.
Σύμφωνα με την Μελέτη Περιβαλλοντικών Επιπτώσεων του έργου που εγκρίθηκε από το Υπουργείο Περιβάλλοντος την περασμένη εβδομάδα, ο σταθμός Ελικώνος θα κατασκευαστεί στη συμβολή των οδών Πάρνηθος και Αγίας Γλυκερίας στην Κυψέλη, σε σημείο που σήμερα υπάρχει κοινόχρηστος χώρος πρασίνου. Με βάθος 36,4 μέτρων θα είναι ο πιο βαθύς σταθμός της γραμμής. Ο μοναδικός άλλος σταθμός που θα ξεπερνάει σε βάθος τα 30 μέτρα θα είναι ο σταθμός Ιλίσια (34,7 μέτρα). Στον αντίποδα, ο σταθμός που θα βρίσκεται πιο κοντά στην επιφάνεια του εδάφους θα είναι ο σταθμός Άλσος Βεΐκου που θα κατασκευαστεί σε βάθος 19,7 μέτρων.
Η δεύτερη μεγάλη αλλαγή συνέβη στην Καισαριανή όπου ο σταθμός «Νήαρ Ηστ» μετακινήθηκε από το κέντρο της πόλης σε χώρο πλησίον της Πανεπιστημιούπολης ενώ θα είναι γνωστός με την ομώνυμη ονομασία. Τα επιχείρηματα του δήμου Καισαριανής ήταν πως αν ο σταθμός κατασκευάζονταν στην αρχική του θέση, θα δεσμεύονταν χώρος από τις αθλητικές εγκαταστάσεις της Νήαρ Ηστ καθώς και μέρος προαυλίου σχολείο. Επίσης, καθώς θα ήταν ο πρώτος σταθμός Μετρό που θα συναντούσε κανείς ερχόμενος από την Αττική Οδό, θα δημιουργούνταν κυκλοφοριακό πρόβλημα στους γύρω δρόμους.
Ο σταθμός Πανεπιστημίουπολη, στη νέα θέση του θέση θα αποτελέσει κύριο τρόπο πρόσβασης στην Πανεπιστημιούπολη με την διοίκηση του ιδρύματος να προτίθεται να δρομολογήσει κυκλική λεωφορειακή γραμμή εντός της Πανεπιστημιούπολης ενώ ο δήμος Καισαριανής θα συνδέσει το σταθμό με τη δημοτική συγκοινωνία ώστε να εξυπηρετούνται και άλλες περιοχές της πόλης.
Οι σταθμοί της γραμμής 4
Παρακάτω, παραθέτουμε τους 15 σταθμούς του πρώτου τμήματος της γραμμής 4 του Μετρό, μαζί με πληροφορίες για τη θέση τους, καθώς και διαγράμματα με τις κατόψεις και τις τομές του κάθε σταθμού, ώστε να γίνει εύκολα αντιληπτή η χωροθέτηση των σταθμών και η μορφή που θα έχουν:







Βασικά χαρακτηριστικά της γραμμής
Κύριο αντικείμενο του διαγωνισμού που οδεύει προς τη δεύτερη φάση, είναι η κατασκευή του Α’ τμήματος της γραμμής 4 του Μετρό της Αθήνας (Άλσος Βεΐκου – Γουδί). Πρόκειται για τμήμα μήκους 12,8 περίπου χιλιομέτρων, το οποίο περιλαμβάνει 15 υπόγειους σταθμούς και 10 ενδιάμεσα και τερματικά φρεάτια.
Περιλαμβάνει επίσης μία συνδετήρια σήραγγα (μήκους 840 περίπου μέτρων, μονής τροχιάς) μεταξύ της γραμμής 4 και της ήδη υπάρχουσας συνδετήριας σήραγγας των γραμμών 2 και 3, καθώς και τη σήραγγα πρόσβασης και το χώρο εναπόθεσης/συντήρησης συρμών Κατεχάκη. Θα κατασκευαστούν επίσης μικρές επεκτάσεις σηράγγων-αναμονές στα άκρα της γραμμής προκειμένου να διευκολυνθούν μελλοντικές επεκτάσεις, καθώς και διασταυρώσεις και σήραγγες μικρού μήκους μετά τους σταθμούς Ευαγγελισμός και Ακαδημία, οι οποίες θα χρησιμοποιηθούν μελλοντικά στα πλαίσια της κατασκευής της γραμμής 5.

Για το πρώτο τμήμα της γραμμής 4 θα κατασκευαστούν 9 φρεάτια αερισμού τα οποία λειτουργούν και ως έξοδοι κινδύνου, ο αριθμός των οποίων είναι μικρότερος των όσων έχουν κατασκευαστεί για ανάλογου μήκους τμήματα των γραμμών 2 και 3. Τα φρεάτια αυτά είναι τα εξής: ΕΥ∆ΑΠ, Βεΐκου – πλυντήριο – συντήρηση, Βιβλιοθήκη, ∆ιακλάδωση Ευαγγελισμού, Φορμίωνος, Νήαρ Ήστ (πλησίον της θέσης του καταργηθέντος σταθμού), ∆ικαιοσύνης, ΤΒΜ Κατεχάκη, ΓΝΑ.
Ο αρχικός προϋπολογισμός του έργου ανέρχεται σε 1.450.000.000 (ένα δισεκατομμύριο και τετρακόσια πενήντα εκατομμύρια ευρώ), χωρίς ΦΠΑ. Το ποσό αυτό περιλαμβάνει δαπάνες για αρχαιολογικές εργασίες, παρακάμψεις δικτύων οργανισμών κοινής ωφέλειας, απρόβλεπτα και αναθεώρηση, ενώ ο τελικός προϋπολογισμός του έργου θα καθοριστεί στα τεύχη του β’ σταδίου του διαγωνισμού.
Σύμφωνα με το Υπουργείο Υποδομών και Μεταφορών, η χρηματοδότηση του έργου θα προέλθει από το ΕΣΠΑ 2014-2020 και μέσω δανειοδότησης από την Ευρωπαϊκή Τράπεζα Επενδύσεων.
Το τμήμα Α’ της Γραμμής 4 έχει σχεδιασθεί με σκοπό την εξυπηρέτηση πολλών πυκνοκατοικημένων περιοχών της πόλης (Γαλάτσι, Κυψέλη, Ζωγράφου κλπ) και την εξυπηρέτηση πολλών σημαντικών κτιρίων και εγκαταστάσεων, όπως Νοσοκομεία, Εκπαιδευτικά Ιδρύματα (Πανεπιστημιούπολη, Πολυτεχνειούπολη), Δικαστήρια και μεγάλα δημόσια κτίρια οργανισμών ή υπουργείων. Επίσης, θα ανακουφισθούν κεντρικοί σταθμοί των γραμμών 2 και 3, αφού θα αυξηθούν οι σταθμοί μετεπιβίβασης από 3 σε 5 με την προσθήκη των σταθμών Ευαγγελισμός και Ακαδημία.
Τεχνικά στοιχεία για τη γραμμή 4
Η πιο σημαντική ίσως καινοτομία της γραμμής 4 είναι πως θα πρόκειται για μία αυτοματοποιημένη γραμμή Μετρό – την πρώτη για την Αθήνα, χωρίς οδηγούς αλλά με συνοδούς εντός των συρμών. Μία ακόμα καινοτομία της γραμμής 4 θα είναι η λειτουργία πετασμάτων-θυρών σε όλες τις αποβάθρες των σταθμών της γραμμής.
Περισσότερες πληροφορίες για την αυτοματοποιημένη λειτουργία: Γραμμή 4: Η πρώτη γραμμή του Μετρό της Αθήνας χωρίς οδηγούς
Η κύρια σήραγγα στο σύνολο του έργου θα είναι διπλής τροχιάς (διαμέτρου περίπου 8,5 μ εσωτερικά και περίπου 9,5 μ εξωτερικά). Θα κατασκευαστεί με μηχανήματα διάνοιξης σηράγγων ολομέτωπης κοπής (TBM), σχεδιασμένα και εξοπλισμένα σύμφωνα με την πλέον σύγχρονη τεχνολογία και λαμβάνοντας υπόψη τις αναμενόμενες γεωλογικές, υδρογεωλογικές και γεωτεχνικές συνθήκες στις περιοχές του έργου, πλην των τμημάτων σηράγγων και υπόγειων σταθμών όπου η υπόγεια διάνοιξη θα υλοποιηθεί με συμβατικά μηχανικά μέσα. Συνολικά θα χρησιμοποιηθούν 2 TBM (μετροπόντικες) που αναμένεται να ξεκινήσουν την εκσκαφή από τα δύο άκρα της γραμμής, κινούμενα αντίθετα.
Κατά τη διάρκεια των γεωλογικών και γεωτεχνικών ερευνών, πραγματοποιήθηκαν 190 δειγματοληπτικές γεωτρήσεις κατά μήκος της γραμμής ώστε να μελετηθεί η σύσταση του υπεδάφους, ενώ τοποθετήθηκαν 162 πιεζόμετρα για την παρακολούθηση της στάθμης υπογείου νερού. Η σήραγγα θα τέμνει τον Ιλισσό ποταμό και τους παραποτάμους του καθώς και τους χείμαρρους που κατέρχονται από τα Τουρκοβούνια στην περιοχή Γαλατσίου, Κυψέλης και Αλεξάνδρας. Εκτός λίγων εξαιρέσεων, στο σύνολό τους οι υδρογραφικοί άξονες έχουν εγκιβωτιστεί και μετατραπεί σε υπόγειους αγωγούς ομβρίων. Η στάθμη του υπογείου νερού αναμένεται γενικά πάνω από την οροφή της σήραγγας. Εξαίρεση αποτελούν περιορισμένου μήκους τμήματα όπου η στάθμη διαμορφώνεται εντός ή κάτω από τη διατομή της σήραγγας.
Οι επεκτάσεις της γραμμής 4

Μέχρι στιγμής, μετά την κατασκευή του τμήματος Α’ της γραμμής 4 (Άλσος Βεΐκου – Γουδή) μήκους 12,8 χλμ. με 15 σταθμούς, αναμένεται η κατασκευή τεσσάρων ακόμα επεκτάσεων της γραμμής. Αυτές είναι:
Σε ακόμα πιο μεταγενέστερο στάδιο, και αν δεν επέλθει κάποια αλλαγή στο σχεδιασμό, αναμένεται να υπάρξει και άλλη επέκταση της γραμμής 4 από τον Περισσό προς την Πετρούπολη, δια μέσω των Αγίων Αναργύρων.



